Piccolo ma performante

Non sempre le dimensioni contano…

Oggi il mercato del serramento e dell’involucro edilizio in generale
propone una vastità di prodotti uno ‘simile’ all’altro, magari qualcuno è solo una copia di quello che il Leader del settore commercializza e migliora da decenni.

Spesso e volentieri mi trovo a discutere con Architetti ed Ingegneri, che al momento di inserire in capitolato una facciata o dei serramenti, mi pogono la solita domanda

Come facciamo ad abbinare ESTETICA e FUNZIONALITA’ in un unico prodotto?

Se anche tu rientri in questa nicchia di professionisti, oggi voglio renderti noto 2 grandi novità messe in commercio proprio ad inizio anno da un colosso del mondo dell’involucro edilizio SCHUCO (Ns. partner da 30 anni)

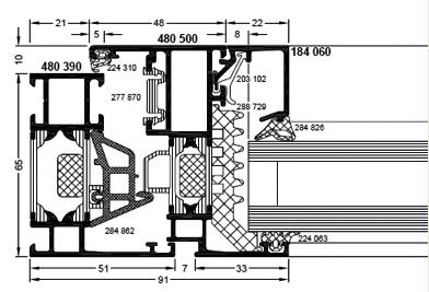
La prima è AWS65 HI
Sistema per finestre e porte/finestre a battente con una sezione di soli 65 mm, i profili a vista possono variare dai 120mm ai soli 91mm (anta e telaio compresi)
Abbandonando il classico clichè de: IL SERRAMENTO PIU’ GROSSO E’ MEGLIO E’
Con i giusti sistemi costruttivi e vetri camera o doppia camera, a seconda delle esigenze riusciamo a soddisfare quanto richiesto dalla committenza.

aws 65 hi cosmai
Schuco AWS 65 HI_Cosmai
aws65hi cosmai tecniche
Note tecniche sistema

Il secondo sistema di oggi è

FWS 35 PD
Sistema costruttivo per facciate continue con sistema montanti e traversi
PROFILO A VISTA DI SOLI 35 MM ! Non male vero?

fw35 pd cosmai
Profili a vista dal design estremamente minimal
tecniche FWS35PD cosmai
Note tecniche sistema FWS 35 PD Schuco_Cosmai

Quelle mostrate sopra sono solo alcuni sistemi dell’immenso mondo SCHUCO

Se hai voglia di approfondire il tutto continua a seguire il mio blog, o contattami alla mail sotto riportata.

Carlo Cosmai

carlo.cosmai.ci@gmail.com

← Precedente

Grazie per la risposta. ✨

Lascia un commento

Crea un sito web o un blog su WordPress.com

Su ↑